Zwartelaan 21, Voorburg

  • Omschrijving

    Uitzonderlijk fraai in 2022/2023 gerenoveerd herenhuis uit ca. 1850 met ca. 15 meter diepe voortuin en ook ca. 15 meter diepe achtertuin. Perfecte combinatie van klassieke details met hedendaags comfort. Vanaf het moment dat de huidige familie dit huis aankocht is het tot aan de nok toe gestript , geheel verduurzaamd en volledig geïsoleerd.

    Omgeving:
    De alom geliefde Herenstraat met leuke winkels, restaurants en gezelligheid ligt letterlijk om de hoek van de woning. Het is een korte fietstocht naar het centrum van Den Haag, maar het prestigieus ontwikkelde Binckhorst met restaurants en uitgaansgelegenheid bevindt zich op loop afstand. Op de warmere dagen is het een leuke fietstocht naar het Scheveningse strand, maar dichtbij huis bevinden zich 4 stadsparken (Arentsburgh, Hoekenburg, Sonneburgh en Middenburgh). met daarnaast museum Huygens "Hofwijck" en De Vliet. Ideaal is dat de uitvalswegen (A12, A13 en A4) binnen mum van tijd zijn bereikt en ook het openbaar vervoer ligt direct om de hoek (o.a. Station Voorburg, Intercity-en metrostation Den Haag NOI en diverse busverbindingen). In de directe omgeving bevinden zich verschillende lagere- en middelbare scholen op loop- en fietsafstand. Tevens is om de hoek het geliefde "Opa's veldje" te vinden, een omheind voetbalveld(je) met klimtoestellen voor kinderen.

    Indeling: entree, vestibule, hal/gang, kast met wasmachineaansluiting, luxe toilet, doorloop naar multifunctionele tuinkamer, uitermate sfeervolle woon/eetkamer met luxe open keuken voorzien van een fraaie houten vloer met vloerverwarming.

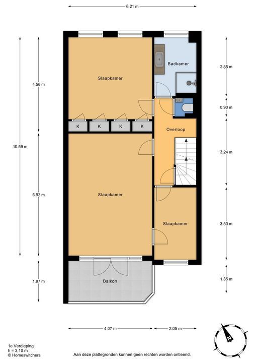
    Eerste verdieping: Ruime overloop met luxe toilet, riante voorslaapkamer met doorgang naar kleedkamer en ruim balkon aan de voorzijde, luxe badkamer met douche, ruime achterslaapkamer.

    Tweede verdieping: Nu in gebruik als compleet appartement maar meerdere kamers mogelijk.

    Extra informatie:
    - volledig geïsoleerd dus buitenmuur, vloer, kozijnen (met HR++ glas) en dak;
    - CV middels warmtepomp (sept. 2022) all electric;
    - 15 zonnepanelen;
    - 200 m2 woonoppervlakte;
    - fietsenberging in de voortuin;
    - berging in de achtertuin;
    - woonkamer met waarschijnlijk mooiste plafond van Voorburg;
    - energielabel A;
    - vloerverwarming begane grond;
    - elektrische installatie volledig vernieuwd in 2022;
    - projectnotaris Notariskantoor Post Den Haag.

  • Locatie

    [ { "address": "Zwartelaan 21", "zipCode": "2271 BR", "city": "Voorburg", "lat": 52.066801, "lng": 4.3610258, "heading": 0, "pitch": 0 } ]
  • Kenmerken

    Prijs
    € 1.150.000 k.k.
    Status
    Beschikbaar
    Oplevering
    In overleg

    Bouw

    Soort woonhuis
    Herenhuis, Tussenwoning
    Soort bouw
    Bestaande bouw
    Bouwjaar
    -1906
    Onderhoud binnen
    Uitstekend
    Onderhoud buiten
    Uitstekend

    Oppervlakten en inhoud

    Oppervlakte
    200m²
    Perceel
    288m²
    Overig oppervlakte
    3m²
    Inhoud
    769m³

    Indeling

    Aantal kamers
    6
    Aantal slaapkamers
    3
    Aantal badkamers
    1
    Verdiepingen
    3
    Voorzieningen
    Zonnepanelen

    Energie

    Energielabel
    A
    Isolatie
    Volledig geisoleerd
    Verwarming
    Vloerverwarming gedeeltelijk, Warmtepomp

    Buitenruimte

    Ligging
    In centrum
    Balkon
    Ja
    Tuin
    Achtertuin, Voortuin
    Achtertuin
    Noordoost, 96m², 660×1460cm
    Schuur
    Aangebouwd steen

    Garage

  • Plattegronden

  • Interesse in deze woning

    Vul uw gegevens in en wij nemen zo snel mogelijk contact met u op voor een afspraak of meer informatie.

    Uw bericht is naar ons verzonden. Wij nemen zo snel mogelijk contact met u op.

    Er is iets mis gegaan met het versturen van het formulier.
    Controleer of u alle velden (goed) heeft ingevoerd en probeer het nog een keer.

    Hoeveel is ?  

    Heeft u vragen?

    Bel ons 070 - 762 00 90