Rozenboomlaan 32, Voorburg

  • Omschrijving

    Verrassend ruim dubbel bovenhuis (132 m²) met 4 slaapkamers, zonnig balkon én royaal dakterras!

    Op een fantastische locatie in Voorburg – op loopafstand van de Herenstraat en winkelcentrum De Julianabaan – ligt dit lichte en ruim opgezette dubbel bovenhuis met maar liefst 132 m² gebruiksoppervlakte.
    De woning beschikt over vier slaapkamers (op de overloop 1e etage 1 wand plaatsen), een moderne open keuken met veel werkruimte en diverse inbouw apparatuur, een badkamer met wastafel, douche en jacuzzi (badkamer dient wel gemoderniseerd te worden) én er is een groot dakterras (ca. 21 m²) met vrij uitzicht. Dankzij de ruime opzet en de sfeervolle houten vloeren is dit een heerlijk ruim huis op een leuke locatie!

    Indeling:
    Begane grond
    Eigen entree met trapopgang naar de eerste verdieping.
    Eerste verdieping (ca. 85,7 m²)
    Zeer ruime en lichte woon-/eetkamer met fraaie massieve houten vloeren, open structuur en grote raampartijen die zorgen voor veel lichtinval. Via openslaande deuren toegang tot het balkon aan de voorzijde (2,4 m²) op het zuidwesten – een heerlijke plek om van de middagzon te genieten. De open keuken in landelijke stijl is voorzien van een donker granieten werkblad en diverse inbouwapparatuur, waaronder een 6-pits gasfornuis met oven, afzuigkap, vaatwasser, koel-vriescombinatie en voldoende kastruimte. Aan de voorzijde bevindt zich een slaap-/werkkamer met vaste kast.
    De badkamer is uitgerust met een jacuzzi, wastafelmeubel en separate douche. Aparte toiletruimte met fonteintje.

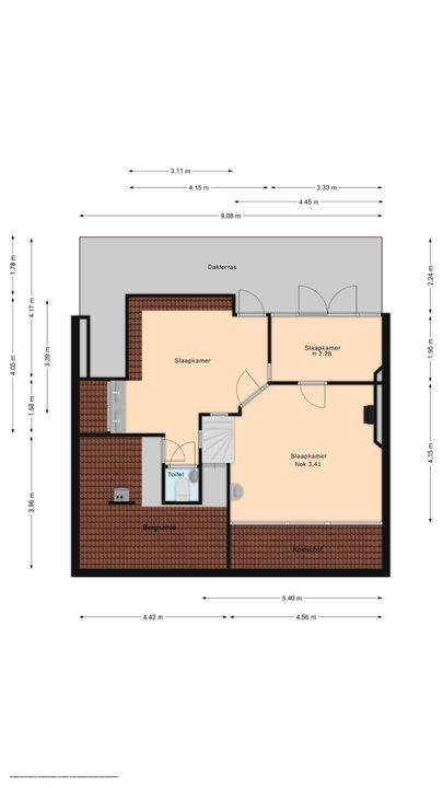
    Tweede verdieping (ca. 45,2 m²)
    Grote open ruimte met wastafel en veel bergruimte achter de knieschotten. Van deze ruimte is zeer eenvoudig een 4e slaapkamer te maken. Ruime master bedroom met dubbele wastafels, eigen toilet en toegang tot een praktische berging met Remeha Avanta cv-combiketel (2006). Aan de achterzijde twee slaapkamers, waarvan één met openslaande deuren naar het dakterras (21,5 m²) met veel privacy en vrij uitzicht.

    Pluspunten
    • Woonoppervlakte: ca. 132 m²
    • 4 slaapkamers
    • Zonnig balkon (ZW) en ruim dakterras (21,5 m²)
    • Moderne open keuken met granieten blad
    • VvE niet actief
    • Cv-combiketel Remeha Avanta (2006)
    • Centrale ligging nabij winkels, scholen, openbaar vervoer en uitvalswegen
    • Projectnotaris Caminada Notarissen Rijswijk
    • Direct beschikbaar!

    Omgeving
    De woning ligt in een rustige straat, vlak bij het oude centrum van Voorburg met gezellige winkels, restaurants en terrassen. Op enkele minuten lopen vind je winkelcentrum De Julianabaan, meerdere basisscholen, parken en openbaar vervoer (bus, tram, station Voorburg). Binnen enkele minuten bereik je de A12, A13 en A4.

    Kortom
    Een ruim, licht en comfortabel familiehuis met buitenruimte op elke verdieping – gelegen op een toplocatie in Voorburg!
    Plan snel een bezichtiging en ervaar zelf de ruimte en het wooncomfort van de Rozenboomlaan 32.

  • Locatie

    [ { "address": "Rozenboomlaan 32", "zipCode": "2271 VN", "city": "Voorburg", "lat": 52.0715024, "lng": 4.3641561, "heading": 0, "pitch": 0 } ]
  • Kenmerken

    Prijs
    € 575.000 k.k.
    Status
    Beschikbaar
    Oplevering
    In overleg

    Bouw

    Soort appartement
    Bovenwoning, Dubbel bovenhuis
    Woonlaag
    2
    Soort bouw
    Bestaande bouw
    Bouwjaar
    1927
    Onderhoud binnen
    Goed
    Onderhoud buiten
    Goed

    Oppervlakten en inhoud

    Oppervlakte
    132m²
    Inhoud
    479m³

    Indeling

    Aantal kamers
    6
    Aantal slaapkamers
    4
    Aantal badkamers
    1
    Verdiepingen
    2
    Voorzieningen
    Rookkanaal, TV-Kabel

    Energie

    Energielabel
    E
    Isolatie
    Dakisolatie, Dubbel glas
    Warm water
    C.V.-ketel
    Verwarming
    C.V.-ketel
    Ketel
    (Combi-ketel, Eigendom)

    Buitenruimte

    Ligging
    Aan rustige weg
    Balkon
    Ja
    Tuin
    Zonneterras

    Garage

  • Plattegronden

  • Interesse in deze woning

    Vul uw gegevens in en wij nemen zo snel mogelijk contact met u op voor een afspraak of meer informatie.

    Uw bericht is naar ons verzonden. Wij nemen zo snel mogelijk contact met u op.

    Er is iets mis gegaan met het versturen van het formulier.
    Controleer of u alle velden (goed) heeft ingevoerd en probeer het nog een keer.

    Hoeveel is ?  

    Heeft u vragen?

    Bel ons 070 - 762 00 90