Prinses Beatrixlaan 569, Voorburg

  • Omschrijving

    Luxe en comfortabel wonen met tuin, eigen parkeerplaats en berging – Park 070, Voorburg.

    In het geliefde en moderne Park 070 ligt deze uitstekend onderhouden maisonnette met ruim 127 m2 gebruiksoppervlakte en een verrassend ruime indeling verdeeld over drie woonlagen. De woning beschikt over een luxe woon-/eetkeuken met tuin op de begane grond, een royale woonkamer op de eerste verdieping en twee slaapkamers met badkamer op de tweede verdieping. Daarnaast zijn er een eigen berging én privé parkeerplaats in de ondergelegen garage.

    Deze ruime nagenoeg nieuwe woning is zeker een bezichtiging waard. Park070 is een nieuwe woonwijk op de grens van Den Haag en Voorburg. Het gebied is ruim opgezet met veel groen en het is een autovrij woongebied geworden. Het complex kent een zeer duurzame energievoorziening (A+++ label) en is al klaar voor de toekomst “van het aardgas af”. De bereikbaarheid is zeer goed. Het openbaar vervoer naar Den Haag (tram en RandstadRail), Zoetermeer (RandstadRail), Rotterdam (trein en metro) én Amsterdam (trein) is op ongeveer 10 minuten loopafstand. Park070 ligt tevens op 5 minuten afstand van de Utrechtsebaan/ A12 en de A4 richting Amsterdam en Rotterdam. Winkelcentrum Julianabaan en de Mall of the Netherlands zijn vlakbij met een groot aanbod aan retail, supermarkten en horeca. Zoals gezegd is het een energiezuinige “gasloze” woonwijk. De energie die wél gebruikt wordt is zo veel mogelijk afkomstig van hernieuwbare bronnen, zoals een warmtepomp en een Warmte Koude Opslag (WKO). Deze Warmte Koude Opslag haalt in de winter warmte uit de bodem en zorgt in de zomer dat de woningen gekoeld kunnen worden.

    Indeling:
    Begane grond
    Entree via het afgesloten portiek. In de woning komt u binnen in de hal met meterkast, toiletruimte en interne bergkast.
    De luxe woon-/eetkeuken is strak en modern uitgevoerd en vormt het hart van de woning. Dankzij de openslaande deuren naar de zonnige tuin is dit een heerlijke leefruimte waar binnen en buiten naadloos in elkaar overgaan. De keuken is voorzien van diverse inbouwapparatuur en een royaal kook-/spoeleiland; ideaal voor kookliefhebbers en gezellige diners.

    Eerste verdieping
    Op deze verdieping bevindt zich de ruime en lichte woonkamer, met grote raampartijen en een prettige plafondhoogte. Door de situering op de eerste etage geniet u hier van veel privacy en een vrij uitzicht.

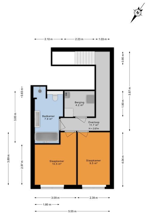
    Tweede verdieping
    Overloop met toegang tot twee goed bemeten slaapkamers. De moderne badkamer is praktisch en netjes afgewerkt en voorzien van onder andere een inloopdouche, wastafelmeubel, een groot ligbad en toilet. Daarnaast is er een aparte bergruimte/technische ruimte.

    Buitenruimte & parkeren
    - Zonnige privé tuin grenzend aan de woonkeuken
    - Eigen (fietsen)berging
    - Privé parkeerplaats in de afgesloten ondergelegen parkeergarage, in de garage is de infrastructuur al aanwezig om een eigen laadpaal aan te laten leggen

    Kenmerken
    - Moderne maisonnette verdeeld over drie woonlagen
    - Luxe woon-/eetkeuken met directe toegang tot de tuin
    - Ruime woonkamer op de 1e verdieping
    - Twee slaapkamers op de 2e verdieping
    - Ca. 127 m2 gebruiksoppervlakte
    - Eigen parkeerplaats en berging in de garage
    - Gelegen in het populaire Park 070
    - Volledig geïsoleerd en comfortabel wonen (A+++ energielabel)
    - Actieve en gezonde VvE, bijdrage € 157,71 per maand voor de woning en € 38,57 voor de parkeerplaats
    - Oplevering in overleg

    Een instapklare woning met een unieke indeling, tuin én parkeren: een zeldzame combinatie in deze omgeving.
    Maak snel een afspraak voor een bezichtiging en laat u verrassen door de ruimte en het wooncomfort!

    Luxury and comfortable living with garden, private parking space and storage – Park 070, Voorburg

    In the popular and modern Park 070, you will find this excellently maintained maisonette apartment with approximately 127 m² of usable living space and a surprisingly spacious layout spread over three levels. The property features a luxury open-plan kitchen/dining area with garden access on the ground floor, a generous living room on the first floor, and two bedrooms with a bathroom on the second floor. In addition, there is a private storage unit and a private parking space in the enclosed underground garage.

    This spacious, nearly new home is certainly worth viewing. Park 070 is a modern residential area located on the border of The Hague and Voorburg. The neighbourhood is spaciously designed with plenty of greenery and has become a car-free residential area. The complex offers a highly sustainable energy system (energy label A+++) and is fully prepared for a gas-free future. Accessibility is excellent: public transport to The Hague (tram and RandstadRail), Zoetermeer (RandstadRail), Rotterdam (train and metro) and Amsterdam (train) is within approximately 10 minutes’ walking distance. Park 070 is also just 5 minutes from the Utrechtsebaan/A12 and the A4, providing quick connections to Amsterdam and Rotterdam. Shopping centre Julianabaan and The Mall of the Netherlands are nearby, offering a wide range of shops, supermarkets and restaurants.

    As mentioned, this is an energy-efficient, gas-free residential area. The energy that is used is largely derived from renewable sources, such as a heat pump and Thermal Energy Storage (WKO) system. This system extracts heat from the ground in winter and provides cooling during the summer.

    Layout

    Ground floor
    Entrance via a secured communal hallway. Upon entering the apartment, you arrive in the hall with meter cupboard, toilet and an internal storage closet.
    The luxury open-plan kitchen/dining area is sleek and modern and truly forms the heart of the home. Thanks to the French doors to the sunny garden, indoor and outdoor living blend seamlessly. The kitchen is equipped with various built-in appliances and a spacious cooking/preparation island, ideal for cooking enthusiasts and entertaining guests.

    First floor
    This level features the spacious and bright living room, with large windows, a pleasant ceiling height and a high level of privacy due to its elevated position.

    Second floor
    Landing with access to two well-proportioned bedrooms. The modern bathroom is neatly finished and fitted with a walk-in shower, washbasin unit, large bathtub and toilet. There is also a separate storage/technical room.

    - Outdoor space & parking
    - Sunny private garden adjoining the kitchen
    - Private (bicycle) storage unit
    - Private parking space in the secured underground garage
    (infrastructure already in place to install a private charging point for an electric vehicle)
    - Key features
    - Modern maisonette spread over three floors
    - Luxury kitchen/dining area with direct garden access
    - Spacious living room on the first floor
    - Two bedrooms on the second floor
    - Approx. 127 m² of usable living space
    - Private parking space and storage in the garage
    - Located in the sought-after Park 070 development
    - Fully insulated and highly comfortable living (energy label A+++)
    - Active and financially healthy owners’ association (VvE)
    - Monthly contribution apartment: €157.71
    - Monthly contribution parking space: €38.57
    - Handover by mutual agreement

    An immediately habitable home with a unique layout, private garden and parking—a rare combination in this area.
    Schedule a viewing today and be pleasantly surprised by the space and level of living comfort!

  • Locatie

    [ { "address": "Prinses Beatrixlaan 569", "zipCode": "2273 XZ", "city": "Voorburg", "lat": 52.0835498, "lng": 4.35591, "heading": 0, "pitch": 0 } ]
  • Kenmerken

    Prijs
    € 699.000 k.k.
    Status
    Beschikbaar
    Oplevering
    In overleg

    Bouw

    Soort appartement
    Maisonnette, Appartement
    Woonlaag
    1
    Soort bouw
    Bestaande bouw
    Bouwjaar
    2022
    Onderhoud binnen
    Uitstekend
    Onderhoud buiten
    Uitstekend

    Oppervlakten en inhoud

    Oppervlakte
    127m²
    Inhoud
    451m³

    Indeling

    Aantal kamers
    4
    Aantal slaapkamers
    2
    Aantal badkamers
    1
    Verdiepingen
    3
    Voorzieningen
    Balansventilatie, Glasvezel kabel, TV-Kabel

    Energie

    Energielabel
    A+++
    Isolatie
    Volledig geisoleerd
    Warm water
    Aardwarmte
    Verwarming
    Aardwarmte, Vloerverwarming geheel

    Buitenruimte

    Ligging
    Beschutte ligging, In woonwijk
    Tuin
    Voortuin
    Voortuin
    Zuidoost, 23m², 403×561cm
    Schuur
    Box

    Garage

    Soort garage
    Parkeerplaats
    Afmetingen
    11m², 226×470
  • Plattegronden

  • Interesse in deze woning

    Vul uw gegevens in en wij nemen zo snel mogelijk contact met u op voor een afspraak of meer informatie.

    Uw bericht is naar ons verzonden. Wij nemen zo snel mogelijk contact met u op.

    Er is iets mis gegaan met het versturen van het formulier.
    Controleer of u alle velden (goed) heeft ingevoerd en probeer het nog een keer.

    Hoeveel is ?  

    Heeft u vragen?

    Bel ons 070 - 762 00 90