Park Vronesteyn 37, Voorburg

  • Omschrijving

    OP EEN WERKELIJK ZEER MOOIE LOCATIE GELEGEN PERFECT ONDERHOUDEN EN UITGEBOUWDE VOOROORLOGSE 2-ONDER 1 KAP WONING MET CA. 184 M2 GEBRUIKSOPPERVLAKTE WONEN EN CA. 367 M2 PERCEELOPPERVLAKTE, 5 GOEDE SLAAPKAMERS, 2 BADKAMERS, EEN OPRIT VOOR MEERDERE AUTO’S, EEN GROTE VOORTUIN EN EEN ZEER ZONNIGE ACHTERTUIN MET MIDDAG- EN AVONDZON. DE WONING HEEFT VANWEGE DE KARAKTERISTIEKE BOUWSTIJL EEN ZEER CHARMANTE UITSTRALING!.

    Vanaf de jaren ’20 van de 20ste eeuw ontwikkelde zich op de gelijknamige buitenplaats Park Vronesteyn een rustige (kind)vriendelijke woonwijk tussen de Parkweg en de Vliet. Kenmerkend is het groene karakter met royaal opgezette vrijstaande en dubbele herenhuizen, afgewisseld met villa’s langs sfeervolle autoluwe straten met eenrichtingsverkeer. Deze gewilde wijk is zeer gunstig gelegen ten opzichte van diverse uitvalswegen (Prins Clausplein en Sijtwendetunnel richting de A12, A4 en A44) en openbaar vervoer. Het Randstadrail station Leidschendam-Voorburg naar Den Haag en Rotterdam en de bushalte naar Leiden en station Voorburg bevinden zich op enkele minuten lopen. Een breed aanbod aan winkels en horecagelegenheden is lopend of op de fiets goed bereikbaar. Bijvoorbeeld het oude historische centrum van Voorburg met de sfeervolle Herenstraat en het oude centrum van Leidschendam met het gezellige sluisje. Winkelcentrum “Mall of the Netherlands” een overdekt shopwalhalla met 230 winkels, bioscoop en foodcourt met kwaliteit versmarkt bevindt zich ook op fietsafstand. In de directe omgeving van Park Vronesteyn bevinden zich diverse groenvoorzieningen zoals het Sijtwende Park en Park Vreugd & Rust. Er is een ruim aanbod aan zowel lager- als middelbaar onderwijs in de buurt, evenals diverse sportfaciliteiten (zoals tennisbaan Vreugd & Rust, hockeyvereniging Cartouche en voetbalvereniging Forum Sport). Kortom, een rustig gelegen dorpse plek, die door de gunstige ligging nabij allerlei stedelijke voorzieningen verbonden is met de dynamiek van de randstad; the best of both worlds!

    Indeling:
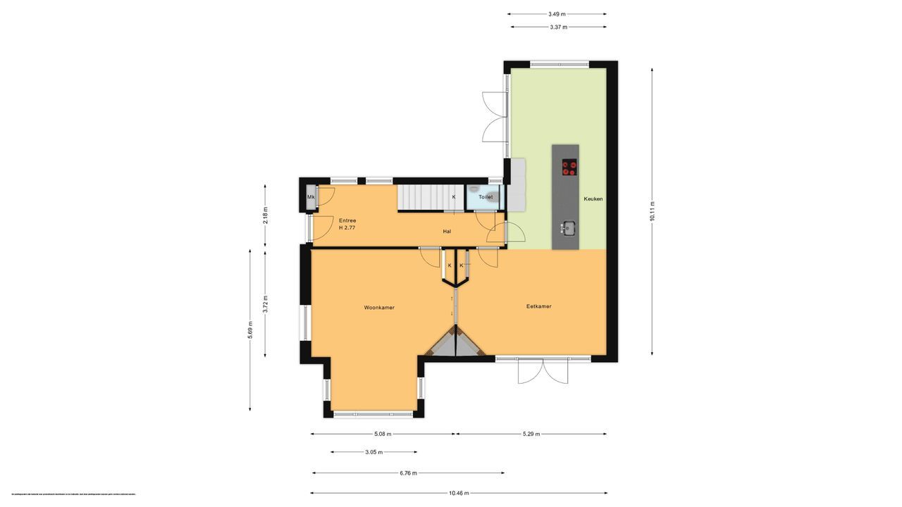
    Oprit voor ca. 3 auto’s, zij- entree voor de woning. Grote entreehal met trappenhuis, meterkasten modern betegelde toiletruimte met zwevend toilet en fontein. Doorloop naar de zeer lichte woon-eetkamer ensuite. De totale maatvoering is ca. 5.69 x 5.08 voor de woonkamer (met grote erker en een open haard. De eetkamer is ca. 5.29 x 3.72 en heeft tevens een open haard. De beide kamers zijn gescheiden door een nieuw gebouwde suiteseparatie met schuifdeuren en kasten. Vanuit de eetkamer dubbele openslaande deuren naar de grote voortuin met ochtend zon. Vanuit de eetkamer direct doorloop naar de fraaie uitgebouwde keukenruimte (het betreft een open keuken). De keuken is kwalitatief zeer hoogwaardig en heeft een tijdloos moderne uitstraling. Het betreft een fraai kook- en spoeleiland met greeploze kasten en een strak en dun granieten werkblad. In het eiland zit een spoelbak met Quooker en een inductie kookplaat met ingebouwde afzuiger. Uiteraard ontbreekt een vaatwasser ook niet. In het wand-gedeelte zit de koel-vrieskast en een oven en een aparte hoge druk stoomoven. Vanuit de uitbouw aan de achterzijde is er direct toegang tot de zonnige, fraai aangelegde achtertuin. De achtertuin is ca. 17 meter breed en ca. 7.27 diep en heeft tevens een grote schuur.

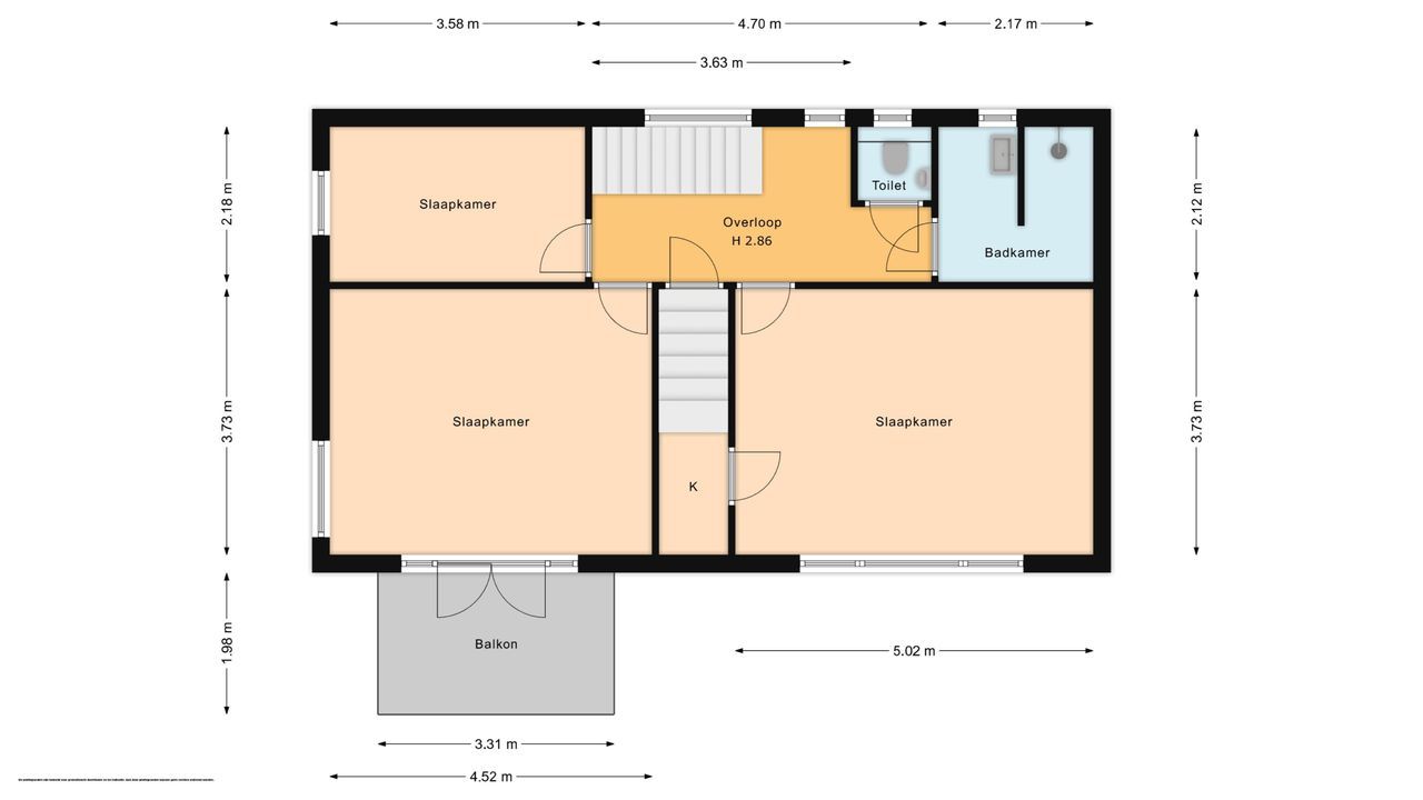
    1e etage:
    Ruime en vanwege de vele zijramen ook lichte overloop. 2e toiletruimte tevens met zwevend toilet met fontein. Moderne recent gerenoveerde badkamer met een wastafelmeubel en een ruime inloopdouche, deze badkamer heeft tevens vloerverwarming. Op deze verdieping 3 slaapkamers, 2 grote aan de voorzijde van resp. ca. 4.52 x 3.73 met een terras van ca. 2.00 x 3.31. De andere slaapkamer aan de voorzijde is ca. 5.02 x 3.73 en heeft een vaste kast. De zijkamer van ca. 3.58 x 2.18 is thans in gebruik als inloop kledingkast.

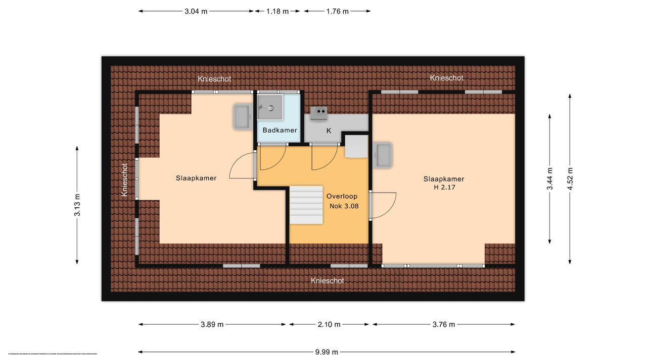
    Zolderetage:
    Overloop met 2e badkamer met een douche. Kast met de Cv opstelplaats (Remeha Tzerra inclusief lucht warmtepomp hybride systeem uit 2018) en 2 grote slaapkamers ieder met dakkapellen resp. ca. 4.52 x 3.76 en ca. 4.52 x 3.89 en beiden voorzien van een wastafelmeubel. Er is hier bergruimte achter de knieschotten en is er nog toegang tot de bergvliering.

    EEN DERGELIJK STIJLVOL RUIM EN HOOGWAARDIG AFGEWERKT HERENHUIS MET SPEELSE INDELING EN BOORDEVOL KARAKTER OP ZO’N TOPLOCATIE KOMT ZEER ZELDEN OP DE MARKT!

    BIJZONDERHEDEN:
    - Ca. 184 m2 gebruiksoppervlakte wonen
    - Ca. 367 m2 perceeloppervlakte
    - 5 slaapkamers
    - Oprit voor 3 auto’s
    - Eigen grond
    - Recent geheel gerenoveerd
    - Nieuwe luxe keuken (2021)
    - Nieuw sanitair (2021)
    - Woon-eetkamer ensuite
    - Uitbouw aan de achterzijde (2021)
    - Dakisolatie
    - Vloerisolatie
    - Schilderwerk 2022
    - 2 open haarden
    - CV combiketel inclusief Warmtepomp hybride systeem uit 2018
    - 13 zonnepanelen
    - Energielabel C
    - Water ontkalker aanwezig

  • Locatie

    [ { "address": "Park Vronesteyn 37", "zipCode": "2271 HP", "city": "Voorburg", "lat": 52.0767059, "lng": 4.3818052, "heading": 0, "pitch": 0 } ]
  • Kenmerken

    Prijs
    € 1.450.000 k.k.
    Status
    Beschikbaar
    Oplevering
    In overleg

    Bouw

    Soort woonhuis
    Herenhuis, 2-onder-1-kapwoning
    Soort bouw
    Bestaande bouw
    Bouwjaar
    1927
    Onderhoud binnen
    Goed
    Onderhoud buiten
    Uitstekend

    Oppervlakten en inhoud

    Oppervlakte
    184m²
    Perceel
    367m²
    Inhoud
    668m³

    Indeling

    Aantal kamers
    7
    Aantal slaapkamers
    5
    Aantal badkamers
    2
    Verdiepingen
    4
    Voorzieningen
    TV-Kabel, Zonnepanelen

    Energie

    Energielabel
    C
    Isolatie
    Dakisolatie, Dubbel glas, Vloerisolatie
    Warm water
    C.V.-ketel, Elektrische boiler eigendom
    Verwarming
    C.V.-ketel
    Ketel
    Remeha Tzerra (2018, Combi-ketel, Eigendom)

    Buitenruimte

    Ligging
    Beschutte ligging, In woonwijk
    Balkon
    Ja
    Tuin
    Achtertuin, Voortuin
    Achtertuin
    Zuidwest, 122m², 1678×727cm
    Schuur
    Vrijstaand hout
    Faciliteiten schuur
    Voorzien van elektra

    Garage

  • Plattegronden

  • Interesse in deze woning

    Vul uw gegevens in en wij nemen zo snel mogelijk contact met u op voor een afspraak of meer informatie.

    Uw bericht is naar ons verzonden. Wij nemen zo snel mogelijk contact met u op.

    Er is iets mis gegaan met het versturen van het formulier.
    Controleer of u alle velden (goed) heeft ingevoerd en probeer het nog een keer.

    Hoeveel is ?  

    Heeft u vragen?

    Bel ons 070 - 762 00 90