Overburgkade 109, Voorburg

  • Omschrijving

    Ruime en goed onderhouden 3-laags bovenwoning met een gebruiksoppervlakte van ca. 126 m², vrij uitzicht aan de voorzijde, een groot zonnig terras aan de eetkamer, meerdere balkons en een berging achter het gebouw. De woning ligt om de hoek van het geliefde Opa’s Veldje en nabij het gezellige oude centrum van Voorburg met winkels, horeca en scholen. Openbaar vervoer (bus en trein) bevindt zich op korte afstand en ook de uitvalswegen zijn goed bereikbaar.

    Indeling:
    Eerste verdieping
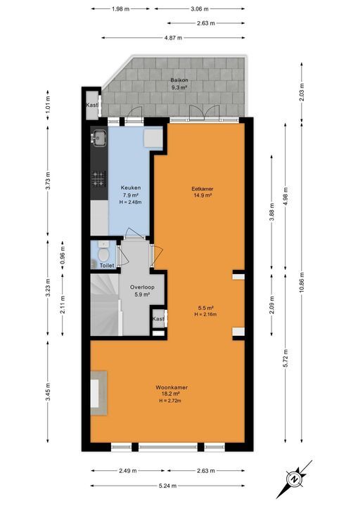
    Via de entree komt u in de hal met separaat toilet. De woon- / eetkamer heeft een totale lengte van ruim 10 meter en is prettig en functioneel ingedeeld. Aan de voorzijde bevindt zich de lichte woonkamer van ca. 18,2 m², met grote raampartijen, vrij uitzicht en een prettige plafondhoogte. De woonkamer en eetkamer worden met elkaar verbonden door een tussenruimte van ca. 5,5 m², die zich uitstekend leent als extra zitplek of werkhoek.

    Aan de achterzijde ligt de eetkamer van ca. 14,9 m², met openslaande deuren naar het ruime zonnige terras van ca. 10 m², voorzien van een vaste kast — een fijne verlenging van de leefruimte.

    De keuken is ca. 7,9 m² en uitgevoerd als een strakke keuken in lichte kleurstelling, voorzien van diverse inbouwapparatuur. Vanuit de keuken is eveneens directe toegang tot het terras.

    Tweede verdieping
    Op de overloop bevinden zich een separaat toilet en praktische bergruimte. Deze verdieping beschikt over twee slaapkamers en een achterzijkamer. De slaapkamer aan de achterzijde is ca. 13,9 m² groot en biedt toegang tot het tweede balkon van ca. 5,4 m². De slaapkamer aan de voorzijde meet ca. 9,5 m² en is voorzien van een dakkapel, wat zorgt voor extra ruimte en veel lichtinval.

    De badkamer is ca. 6,3 m², uitgevoerd met marmeren tegels en ingericht met een ligbad, wastafelmeubel en vaste kast.

    Derde verdieping
    De overloop geeft toegang tot een royale slaapkamer van ca. 16,3 m², voorzien van een grote dakkapel aan de achterzijde. Deze verdieping is ideaal te gebruiken als master bedroom, werk- of hobbyruimte. De zolderverdieping biedt bovendien de mogelijkheid om te worden opgesplitst in twee kleinere (slaap)kamers. Een aansluiting voor sanitair is aanwezig en achter de knieschotten is extra bergruimte beschikbaar.

    Ligging:
    De woning is gelegen op een rustige en groene locatie, direct om de hoek ligt het bekende Opa’s Veldje, een ruim speel- en sportveld. Het oude centrum van Voorburg, station Voorburg, scholen, sportvoorzieningen, De Vliet en diverse parken bevinden zich op loopafstand. De uitvalswegen A4, A12 en A13 zijn snel bereikbaar en het centrum van Den Haag ligt op circa 10 minuten fietsen.

    Bijzonderheden:
    - Gebruiksoppervlakte ca. 126 m²
    - 3-laags bovenwoning
    - Vrij uitzicht aan de voorzijde
    - Groot zonnig terras en meerdere balkons
    - Keuken in lichte kleurstelling met inbouwapparatuur
    - Badkamer met marmeren tegels
    - Zolder op te splitsen en aansluiting voor sanitair aanwezig
    - Dak eind 2025 volledig vernieuwd
    - Dubbele beglazing in de gehele woning
    - CV-combiketel Remeha Avanta (2011)
    - Slaapkamer 2e verdieping voorzijde met dakkapel
    - Slaapkamer 2e verdieping achterzijde met balkon
    - Royale bergruimte
    - Berging achter het gebouw
    - Actieve VvE, bijdrage € 200,- per maand
    - Gelegen op eigen grond
    - Bouwjaar 1941
    - Aandeel VvE: 8/98e
    - Energielabel C
    - Ouderdoms- en materialenclausule van toepassing

    Een comfortabele en veelzijdige woning op een aantrekkelijke groene locatie in Voorburg, met ruimte, groen en uitstekende bereikbaarheid.

    Interesse?
    Neem contact op met C&D Makelaardij voor een bezichtiging. Wij laten u deze woning graag persoonlijk zien.

  • Locatie

    [ { "address": "Overburgkade 109", "zipCode": "2275 XX", "city": "Voorburg", "lat": 52.0672368, "lng": 4.3545116, "heading": 0, "pitch": 0 } ]
  • Kenmerken

    Prijs
    € 539.000 k.k.
    Status
    Verkocht onder voorbehoud
    Oplevering
    In overleg

    Bouw

    Soort appartement
    Bovenwoning
    Woonlaag
    2
    Soort bouw
    Bestaande bouw
    Bouwjaar
    1941
    Onderhoud binnen
    Goed
    Onderhoud buiten
    Goed

    Oppervlakten en inhoud

    Oppervlakte
    126m²
    Overig oppervlakte
    1m²
    Inhoud
    428m³

    Indeling

    Aantal kamers
    5
    Aantal slaapkamers
    4
    Aantal badkamers
    1
    Verdiepingen
    3
    Voorzieningen
    Rookkanaal, TV-Kabel

    Energie

    Energielabel
    C
    Isolatie
    Dakisolatie
    Warm water
    C.V.-ketel
    Verwarming
    C.V.-ketel
    Ketel
    Remeha Avanta (2011, Combi-ketel, Eigendom)

    Buitenruimte

    Ligging
    Aan het water, In woonwijk, Open ligging, Vrij uitzicht
    Balkon
    Ja
    Schuur
    Box
    Faciliteiten schuur
    Voorzien van elektra

    Garage

  • Plattegronden

  • Interesse in deze woning

    Vul uw gegevens in en wij nemen zo snel mogelijk contact met u op voor een afspraak of meer informatie.

    Uw bericht is naar ons verzonden. Wij nemen zo snel mogelijk contact met u op.

    Er is iets mis gegaan met het versturen van het formulier.
    Controleer of u alle velden (goed) heeft ingevoerd en probeer het nog een keer.

    Hoeveel is ?  

    Heeft u vragen?

    Bel ons 070 - 762 00 90