Noteboompark 17, Voorburg

  • Omschrijving

    Luxe en comfortabel wonen in Park Foreburg – Voorburg

    *** English description below ***

    Op een uitstekende en geliefde locatie in Voorburg, in het luxe wooncomplex Park Foreburg, bevindt zich dit zeer lichte en royaal uitgevoerde appartement op de 1e etage met een gebruiksoppervlakte van circa 118 m². Het appartement beschikt over een royale woon-eetkamer, een ruime slaapkamer met luxe halfopen badkamer, een zonnig terras van ca. 16 m² met uitzicht op het fraai aangelegde gemeenschappelijke groen, een eigen parkeerplaats in de afgesloten parkeergarage én een eigen kelderberging.

    Indeling:
    Afgesloten hoofdentree met videofoon en brievenbussentableau. Representatieve centrale hal met luxe meubilair. Lift en verzorgd trappenhuis naar de 1e etage, waar zich slechts vier appartementen bevinden.

    Entree appartement. Het appartement is in 2017 vrijwel volledig gemoderniseerd. Ruime hal met garderoberuimte, videofoon en modern toilet. Bijkeuken met CV-opstelling (Intergas HRE, 2024) en aansluitingen voor wasmachine en droger.

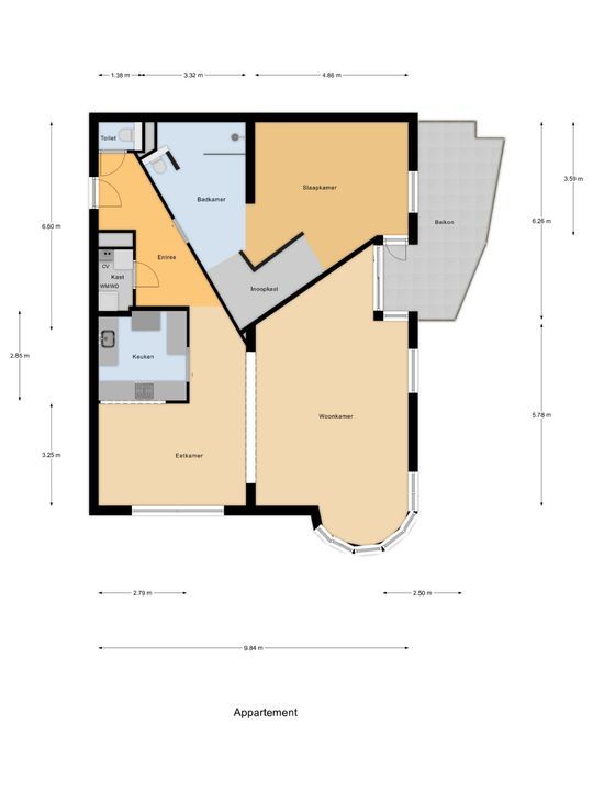
    De ruime slaapkamer (ca. 4.86 x 3.59 m, deels ca. 6.26 m breed) is bereikbaar via de luxe halfopen badkamer, voorzien van een meubel met dubbele wastafel, een riante inloopdouche en een tweede toilet. Aansluitend bevindt zich een grote inloopgarderobe. Vanuit de slaapkamer is er directe toegang tot het terras.

    De zeer royale en lichte woon-eetkamer (ca. 9.84 x 5.78 m) is ontstaan doordat één van de oorspronkelijke slaapkamers bij de woonruimte is betrokken. Dit zorgt voor een uitzonderlijk ruime leefruimte met extra lichtinval en direct contact met het terras. Indien gewenst is deze kamer eenvoudig weer als extra slaapkamer in te delen.
    De semi-open keuken is voorzien van diverse inbouwapparatuur.

    Het appartement is grotendeels voorzien van een fraaie laminaatvloer en heeft een moderne, speelse en eigentijdse uitstraling.

    Voorzieningen complex:
    In dit prachtige complex zijn onder andere aanwezig: een zwembad, sauna, fitnessruimte, logeerappartementen en een huismeester. Comfortabel en luxe wonen met alle voorzieningen binnen handbereik.

    Bijzonderheden:
    - Eigen grond
    - Bouwjaar 1992
    - Woonoppervlakte ca. 118 m²
    - Volledig geïsoleerd
    - In 2024 alle ramen vervangen door HR++ beglazing
    - Royale woon-eetkamer (oorspronkelijk 2 slaapkamers)
    - 1 ruime slaapkamer (met de huidige bewoners kan er worden besproken om weer 2 slaapkamers te realiseren)
    - Terras/balkon ca. 16 m²
    - Eigen parkeerplaats in afgesloten parkeergarage
    - Eigen kelderberging
    - CV-combiketel Intergas HRE (2024)
    - Actieve en gezonde VvE met ruime reserve
    - VvE-bijdrage € 457,- per maand
    - Mogelijkheid tot huren van logeerappartementen en gebruik van vergader-/ontmoetingsruimte De Rotonde
    - Gunstige ligging op loopafstand van winkels, openbaar vervoer en het oude centrum van Voorburg
    - Oplevering in overleg, kan snel

    *** Zie de foto's voor een beter beeld van de woning! ***

    Interesse? Klik op ‘Vraag bezichtiging aan’ op Funda en plan direct uw bezichtiging.
    Na uw aanvraag ontvangt u een e-mail met een link naar onze agenda, kies eenvoudig een moment dat u uitkomt.

    Wij adviseren u een deskundige makelaar in te schakelen om u te begeleiden tijdens het aankoopproces.
    Uw woning nog niet verkocht? Neem contact met ons op voor een gratis waardecheck, wij denken graag met u mee.

    Luxury and comfortable living in Park Foreburg – Voorburg

    Located in an excellent and highly sought-after area of Voorburg, within the luxurious Park Foreburg residential complex, this exceptionally bright and generously proportioned apartment is situated on the first floor and offers approximately 118 m² of usable living space. The apartment features a spacious living and dining room, a large bedroom with a luxurious semi-open bathroom, a sunny terrace of approx. 16 m² overlooking the beautifully landscaped communal greenery, a private parking space in the secured parking garage and a private basement storage room.

    Layout:
    Secured main entrance with video intercom and mailboxes. Representative central hall with luxurious furnishings. Lift and well-maintained staircase to the first floor, where there are only four apartments.

    Entrance to the apartment. The apartment was almost completely modernised in 2017. Spacious hallway with wardrobe space, video intercom and modern toilet. Utility room with central heating system, Intergas HRE, 2024, and connections for a washing machine and dryer.

    The spacious bedroom, approx. 4.86 x 3.59 m and partly approx. 6.26 m wide, is accessed via the luxurious semi-open bathroom, fitted with a vanity unit with double washbasin, a generous walk-in shower and a second toilet. Adjacent to this is a large walk-in wardrobe. The bedroom also provides direct access to the terrace.

    The exceptionally spacious and bright living and dining room, approx. 9.84 x 5.78 m, was created by incorporating one of the original bedrooms into the living area. This provides an unusually generous living space with additional natural light and direct connection to the terrace. This room can easily be converted back into an additional bedroom if desired.

    The semi-open kitchen is fitted with various built-in appliances.

    The apartment is largely finished with an attractive laminate floor and has a modern, playful and contemporary appearance.

    Complex facilities:
    This beautiful complex offers, among other things, a swimming pool, sauna, fitness room, guest apartments and an on-site caretaker. Comfortable and luxurious living with all amenities close at hand.

    Details:
    - Freehold land
    - Year of construction: 1992
    - Living area approx. 118 m²
    - Fully insulated
    - All windows replaced with HR++ glazing in 2024
    - Generous living and dining room, originally two bedrooms
    - One spacious bedroom; the possibility of creating two bedrooms again can be discussed with the current residents
    - Terrace/balcony approx. 16 m²
    - Private parking space in secured parking garage
    - Private basement storage room
    - Intergas HRE central heating combi boiler, 2024
    - Active and healthy homeowners’ association with substantial reserves
    - Homeowners’ association contribution: €457 per month
    - Possibility to rent guest apartments and use of the meeting/social room De Rotonde
    - Conveniently located within walking distance of shops, public transport and the old centre of Voorburg
    - Transfer date nagotiable; quick transfer possible

    We advise you to engage a qualified real estate agent to guide you through the purchasing process.
    Haven’t sold your current home yet? Contact us for a free valuation check, we’d be happy to think along with you.

    Deze informatie is met de nodige zorgvuldigheid samengesteld. Geen enkele aansprakelijkheid wordt aanvaard voor enige onvolledigheid, onjuistheid of tussentijdse wijzigingen, dan wel de gevolgen daarvan.

  • Locatie

    [ { "address": "Noteboompark 17", "zipCode": "2273 LA", "city": "Voorburg", "lat": 52.073492, "lng": 4.3646324, "heading": 0, "pitch": 0 } ]
  • Kenmerken

    Prijs
    € 675.000 k.k.
    Status
    Beschikbaar
    Oplevering
    In overleg

    Bouw

    Soort appartement
    Portiekflat, Appartement
    Woonlaag
    1
    Soort bouw
    Bestaande bouw
    Bouwjaar
    1992
    Onderhoud binnen
    Goed
    Onderhoud buiten
    Goed
    Bijzonderheden
    Toegankelijk voor gehandicapten, Toegankelijk voor ouderen

    Oppervlakten en inhoud

    Oppervlakte
    118m²
    Inhoud
    360m³

    Indeling

    Aantal kamers
    3
    Aantal slaapkamers
    2
    Aantal badkamers
    1
    Verdiepingen
    1
    Voorzieningen
    Lift, Mechanische ventilatie, Sauna, TV-Kabel, Zwembad

    Energie

    Energielabel
    A
    Isolatie
    Volledig geisoleerd
    Warm water
    C.V.-ketel
    Verwarming
    C.V.-ketel
    Ketel
    Intergas HRE (2024, Combi-ketel, Eigendom)

    Buitenruimte

    Ligging
    Aan park, Aan rustige weg, Beschutte ligging, Vrij uitzicht
    Balkon
    Ja
    Schuur
    Box
    Faciliteiten schuur
    Voorzien van elektra

    Garage

    Soort garage
    Parkeerkelder, Parkeerplaats
  • Plattegronden

  • Interesse in deze woning

    Vul uw gegevens in en wij nemen zo snel mogelijk contact met u op voor een afspraak of meer informatie.

    Uw bericht is naar ons verzonden. Wij nemen zo snel mogelijk contact met u op.

    Er is iets mis gegaan met het versturen van het formulier.
    Controleer of u alle velden (goed) heeft ingevoerd en probeer het nog een keer.

    Hoeveel is ?  

    Heeft u vragen?

    Bel ons 070 - 762 00 90