Pelikaanhof 58, Leidschendam

  • Omschrijving

    Pelikaanhof 58 – Leidschendam (wijk ’t Lien)

    In de rustige en groene woonwijk ’t Lien ligt deze fijne eengezinswoning met carport en berging aan de voorzijde en een vrij gelegen tuin. De woning is altijd bewoond geweest door de eerste eigenaar, wat terug te zien is in het nette onderhoud.
    De entree geeft toegang tot de hal met toilet en doorgang naar de woonkamer. De lichte doorzonwoonkamer biedt een prettig uitzicht op de tuin en heeft voldoende ruimte voor een zit- en eethoek. De tuin ligt vrij en is voorzien van een zonnescherm, waardoor je hier heerlijk kunt genieten van zonnige dagen.

    Aan de voorzijde bevindt zich de keuken. De keuken is praktisch ingericht en voorzien van diverse inbouwapparatuur, waaronder een koelkast, vaatwasser, gaskookplaat en een RVS schouw met afzuigkap.

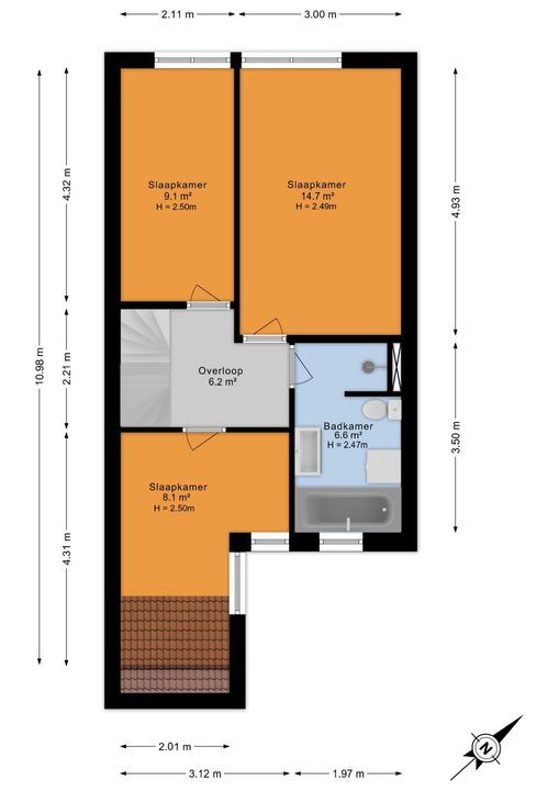
    Op de eerste verdieping bevinden zich drie slaapkamers: twee aan de achterzijde en een aan de voorzijde. Daarnaast is er een complete badkamer met ligbad, douche, tweede toilet, wastafel en een aansluiting voor de wasmachine.

    De zolderverdieping bestaat uit een open ruimte die naar wens kan worden ingericht, bijvoorbeeld als extra slaapkamer, werkruimte of hobbykamer. Tevens is er een vliering.

    Aan de voorzijde van de woning bevindt zich een praktische schuur, ideaal voor fietsen en extra opslag.
    De woning is bovendien voorzien van dubbele beglazing, wat bijdraagt aan het wooncomfort.

    Kortom: een goed onderhouden woning op een fijne en rustige locatie in Leidschendam, met volop mogelijkheden om naar eigen smaak te moderniseren.

  • Locatie

    [ { "address": "Pelikaanhof 58", "zipCode": "2264 JK", "city": "Leidschendam", "lat": 52.0956188, "lng": 4.4085072, "heading": 0, "pitch": 0 } ]
  • Kenmerken

    Prijs
    € 595.000 k.k.
    Status
    Beschikbaar
    Oplevering
    In overleg

    Bouw

    Soort woonhuis
    Eengezinswoning, Geschakelde woning
    Soort bouw
    Bestaande bouw
    Bouwjaar
    1984
    Onderhoud binnen
    Goed
    Onderhoud buiten
    Goed

    Oppervlakten en inhoud

    Oppervlakte
    125m²
    Perceel
    135m²
    Overig oppervlakte
    6m²
    Inhoud
    439m³

    Indeling

    Aantal kamers
    4
    Aantal slaapkamers
    3
    Aantal badkamers
    1
    Verdiepingen
    4
    Voorzieningen
    Buitenzonwering, Mechanische ventilatie, Natuurlijke ventilatie, TV-Kabel

    Energie

    Energielabel
    B
    Isolatie
    Dubbel glas, Gedeeltelijk dubbel glas, Muurisolatie, Vloerisolatie
    Warm water
    C.V.-ketel
    Verwarming
    C.V.-ketel
    Ketel
    Intergas (2021, Combi-ketel, Eigendom)

    Buitenruimte

    Ligging
    Aan rustige weg, In woonwijk
    Tuin
    Achtertuin, Voortuin
    Achtertuin
    Noordwest, 54m², 550×973cm
    Schuur
    Aangebouwd steen
    Faciliteiten schuur
    Voorzien van elektra

    Garage

    Soort garage
    Carport
  • Plattegronden

  • Interesse in deze woning

    Vul uw gegevens in en wij nemen zo snel mogelijk contact met u op voor een afspraak of meer informatie.

    Uw bericht is naar ons verzonden. Wij nemen zo snel mogelijk contact met u op.

    Er is iets mis gegaan met het versturen van het formulier.
    Controleer of u alle velden (goed) heeft ingevoerd en probeer het nog een keer.

    Hoeveel is ?  

    Heeft u vragen?

    Bel ons 070 - 762 00 90