Gerstkamp 272, Den Haag

  • Omschrijving

    Wat een schitterend penthouse! Volledig instapklaar, hoogwaardig afgewerkt en meteen genieten.

    Op de bovenste woonlaag van dit complex vindt u een oase van licht en rust. Door de hoge ligging woont u hier letterlijk boven de stad, met een adembenemend panoramisch uitzicht over de skyline van Den Haag en het omliggende groen.

    In 2022 is het appartement volledig en professioneel gemoderniseerd met gebruik van hoogwaardige materialen. De renovatie is vakkundig uitgevoerd (facturen ter inzage beschikbaar), waardoor u verzekerd bent van kwaliteit. Dankzij de slimme indeling voelt de leefruimte verrassend ruim aan.

    Indeling:
    Nette afgesloten hoofdentree met bellen- en brievenbussentableau. Lift naar de 11e etage, waarna twee brede trappen u naar de bovenste woonlaag leiden.
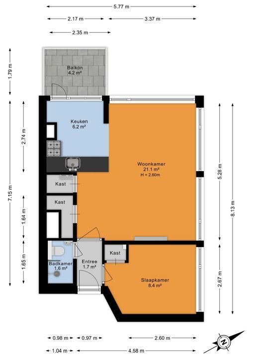
    Entree appartement: hal met toegang tot de vertrekken. Sfeervolle, lichte woonkamer (ca. 5,3 x 3,9 m) met grote raampartijen en panoramisch uitzicht, overlopend in een moderne open keuken (ca. 2,7 x 2,3 m) met voldoende werkruimte en voorzien van div. inbouwapparatuur. Toegang tot het zonnige balkon op het zuidwesten. Rustige slaapkamer (ca. 2,7 x 3,1 m) met tegenover gelegen moderne badkamer. Meerdere praktische inbouwkasten met wma. In de onderbouw beschikt het appartement over een eigen afsluitbare berging (ca. 5 m2).


    Pluspunten:

    EIGEN GROND (dus geen erfpacht).

    Privacy & Rust: Geen bovenburen en een heerlijk vrije ligging.

    Turn-key: Professioneel gemoderniseerd (2022) en direct te betrekken.

    Omgeving:
    De locatie combineert het beste van twee werelden: de natuur dichtbij en de stad aan uw voeten. Voor ontspanning wandelt u zo naar het Haagse Bos of Landgoed Marlot. Met de fiets bent u in korte tijd op het strand van Scheveningen of Wassenaar. Voor de dagelijkse boodschappen liggen winkelcentrum ’t Kleine Loo en de gezellige Theresiastraat om de hoek. De bereikbaarheid is uitstekend met stations Mariahoeve en Laan van NOI nabij, en een snelle ontsluiting naar de A12, A4 en A44 via de Sijtwendetunnel.

    Extra informatie:

    - EIGEN GROND (geen erfpacht!)
    - Woonoppervlakte ca. 43 m2
    - Volledig professioneel gemoderniseerd in 2022
    - Gratis parkeren op eigen terrein en in de directe omgeving
    - Energielabel F
    - Actieve VVE, VVE bijdrage € 167,61 inclusief € 38,- voorschot stookkosten.
    - Oplevering in overleg, kan snel.

    Kortom: een instapklaar en hooggelegen stadsverblijf met veel rust en privacy. U bent van harte welkom om de woning en het indrukwekkende uitzicht zelf te komen ervaren.

  • Locatie

    [ { "address": "Gerstkamp 272", "zipCode": "2592 CX", "city": "Den Haag", "lat": 52.0873555, "lng": 4.3546623, "heading": 0, "pitch": 0 } ]
  • Kenmerken

    Prijs
    € 259.500 k.k.
    Status
    Verkocht
    Oplevering
    In overleg

    Bouw

    Soort appartement
    Penthouse, Appartement
    Woonlaag
    12
    Soort bouw
    Bestaande bouw
    Bouwjaar
    1965
    Onderhoud binnen
    Uitstekend
    Onderhoud buiten
    Goed

    Oppervlakten en inhoud

    Oppervlakte
    44m²
    Inhoud
    146m³

    Indeling

    Aantal kamers
    2
    Aantal slaapkamers
    1
    Aantal badkamers
    1
    Verdiepingen
    1

    Energie

    Energielabel
    F
    Isolatie
    Dubbel glas, Gedeeltelijk dubbel glas
    Warm water
    Elektrische boiler eigendom
    Verwarming
    Blokverwarming

    Buitenruimte

    Ligging
    Aan rustige weg, In woonwijk, Vrij uitzicht
    Balkon
    Ja
    Tuin
    Zonneterras
    Schuur
    Inpandig

    Garage

  • Plattegronden

  • Interesse in deze woning

    Vul uw gegevens in en wij nemen zo snel mogelijk contact met u op voor een afspraak of meer informatie.

    Uw bericht is naar ons verzonden. Wij nemen zo snel mogelijk contact met u op.

    Er is iets mis gegaan met het versturen van het formulier.
    Controleer of u alle velden (goed) heeft ingevoerd en probeer het nog een keer.

    Hoeveel is ?  

    Heeft u vragen?

    Bel ons 070 - 762 00 90