2e De Carpentierstraat 183, Den Haag

  • Omschrijving

    2e De Carpentierstraat 183 – Den Haag (Bezuidenhout)

    Zeer royaal en licht topappartement uit de jaren '20 met zonnig balkon op het zuidwesten, gelegen in het mooiste deel van het Bezuidenhout.
    In een rustige, groene straat in het populaire Bezuidenhout ligt dit uitstekend onderhouden en verrassend ruime appartement. De woning onderscheidt zich door de zeer royale woon-/eetkamer, prettige lichtinval, nette afwerking en het zonnige balkon aan de achterzijde.

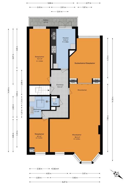
    Indeling
    Entree op de eerste verdieping, ruimte hal met trap naar de woonverdieping.

    Woonverdieping:
    Ruime overloop met toegang tot alle vertrekken. De indrukwekkende woon-/eetkamer is ontstaan doordat één van de oorspronkelijke voorslaapkamers bij de woonkamer is getrokken. Hierdoor is een uitzonderlijk ruime en lichte leefruimte gerealiseerd, voorzien van een fraaie houten parketvloer, hoge plafonds, grote raampartijen en karakteristieke erker aan de voorzijde.

    De keuken is aan de achterzijde gelegen en uitgevoerd in een moderne opstelling. Deze is voorzien van diverse inbouwapparatuur, waaronder een koelkast, vriezer met 4 lades, oven, combi-oven, 5-pits gaskookplaat, afzuigkap en vaatwasser. Vanuit de keuken via openslaande deuren directe toegang tot het zonnige achterbalkon, voorzien van markiezen, met vrij uitzicht over de groene binnentuinen.

    Het appartement beschikt thans over drie slaapkamers van goed formaat.
    De badkamer is netjes uitgevoerd en voorzien van een inloopdouche, wastafelmeubel, wasmachineaansluiting en een dakraam, wat zorgt voor extra daglicht en natuurlijke ventilatie. Daarnaast is er een separaat toilet.

    Indien gewenst kan de indeling relatief eenvoudig worden aangepast waardoor er een extra slaapkamer aan de voorzijde kan worden gerealiseerd.

    Ligging
    Gelegen in een van de meest geliefde delen van het Bezuidenhout, op loopafstand van de Theresiastraat met diverse winkels, horeca en voorzieningen. Openbaar vervoer (o.a. NS-station Laan van NOI en Den Haag Centraal), parken, scholen en uitvalswegen zijn uitstekend bereikbaar.

    Kenmerken
    • Gelegen op eigen grond
    • Gebruiksoppervlakte wonen ruim 127 m² (conform BBMI-meetrapport)
    • Zeer royale woon-/eetkamer
    • Eén van de oorspronkelijke voorslaapkamers is bij de woonkamer betrokken
    • Thans 3 slaapkamers (mogelijkheid tot realiseren extra slaapkamer)
    • Zonnig balkon aan de achterzijde
    • Moderne keuken met: koelkast, vriezer (4 lades), oven, combi-oven, 5-pits gaskookplaat, afzuigkap en vaatwasser
    • Badkamer met inloopdouche, wastafelmeubel, wasmachineaansluiting en dakraam
    • Separaat toilet
    • Elektra: 7 groepen met aardlekschakelaar
    • Fraaie houten vloeren
    • Veel lichtinval door grote raampartijen en erker
    • Verwarming middels cv-installatie
    • Actieve en gezonde VvE
    • Geheel nieuw en geïsoleerd dak (2023)
    • Recent buitenschilderwerk (2024)
    • Parkeren middels vergunningenstelsel
    • Rustige straat in het geliefde Bezuidenhout
    • Oplevering in overleg

  • Locatie

    [ { "address": "2e De Carpentierstraat 183", "zipCode": "2595 HK", "city": "Den Haag", "lat": 52.0825268, "lng": 4.3397626, "heading": 0, "pitch": 0 } ]
  • Kenmerken

    Prijs
    € 585.000 k.k.
    Status
    Beschikbaar
    Oplevering
    In overleg

    Bouw

    Soort appartement
    Bovenwoning, Appartement
    Woonlaag
    Soort bouw
    Bestaande bouw
    Bouwjaar
    1919
    Onderhoud binnen
    Goed
    Onderhoud buiten
    Goed

    Oppervlakten en inhoud

    Oppervlakte
    127m²
    Inhoud
    450m³

    Indeling

    Aantal kamers
    4
    Aantal slaapkamers
    3
    Aantal badkamers
    1
    Verdiepingen
    1

    Energie

    Energielabel
    B
    Isolatie
    Dakisolatie, Dubbel glas, Muurisolatie
    Warm water
    C.V.-ketel
    Verwarming
    C.V.-ketel
    Ketel
    Remeha (2014, Combi-ketel, Eigendom)

    Buitenruimte

    Ligging
    Aan rustige weg, In woonwijk
    Balkon
    Ja

    Garage

  • Plattegronden

  • Interesse in deze woning

    Vul uw gegevens in en wij nemen zo snel mogelijk contact met u op voor een afspraak of meer informatie.

    Uw bericht is naar ons verzonden. Wij nemen zo snel mogelijk contact met u op.

    Er is iets mis gegaan met het versturen van het formulier.
    Controleer of u alle velden (goed) heeft ingevoerd en probeer het nog een keer.

    Hoeveel is ?  

    Heeft u vragen?

    Bel ons 070 - 762 00 90