Ternatestraat 31, Delft

  • Omschrijving

    Ruime parterre met tussenbouw, grote tuin en separate berging in Delft – direct beschikbaar

    In de gewilde en sfeervolle Indische Buurt van Delft ligt deze royale parterrewoning met tussenbouw, voorzien van een grote achtertuin met een grote berging. De woning biedt volop mogelijkheden voor starters, stellen of kleine gezinnen die graag naar eigen smaak willen moderniseren.

    De woning beschikt over een ruime woonkamer met karakteristieke erker, een halfopen keuken, badkamer én een slaapkamer op de verdieping. Met een woonoppervlakte van ca. 64 m² en een externe berging van maar liefst ca. 12 m², (conform BBMI-rapportage).

    Oplevering kan per direct, ideaal voor wie snel wil schakelen.
    Ouderdoms-, materialen- en eigenaar-geen-bewoner-clausule zijn van toepassing.

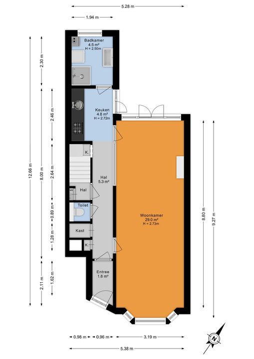
    Indeling
    Begane grond
    Entree via hal met toiletruimte en 2 vaste kasten. De ruime woonkamer met hoog plafond, houten vloer en erker aan de voorzijde biedt heerlijk veel licht. Aan de tuinzijde is via openslaande deuren de achtertuin bereikbaar.

    De keuken is praktisch ingericht en voorzien van gaskookplaat en een oven. Vanuit de keuken is de badkamer met douche, wastafelmeubel en aansluiting voor de wasmachine/droger bereikbaar. Tevens hier de Cv opstelplaats.

    Tussenbouw & achtertuin
    De diepe achtertuin is grotendeels bestraat en daarmee onderhoudsarm, maar biedt ook volop ruimte voor groen en zitplekken. Achterin de tuin bevindt zich een grote houten berging (ca. 12 m²) met dubbele deuren – perfect voor fietsen, opslag of een werkplaats.

    Eerste verdieping
    Via de trap in de tussenbouw bereik je de eerste verdieping, waar zich een lichte slaapkamer bevindt.

    Bijzonderheden
    • Woonoppervlakte ca. 63,95 m² conform BBMI-meetrapport
    • Grote externe berging van ca. 12,23 m²
    • Royale achtertuin met veel privacy
    • Slaapkamer op de verdieping
    • Gelegen in rustige straat nabij winkels, OV, TU Delft, centrum en uitvalswegen
    • Oplevering per direct mogelijk
    • Ouderdoms-, materialen- en eigenaar-geen-bewoner-clausule van toepassing

    Een woning met ruimte, mogelijkheden en directe beschikbaarheid.

    Deze parterrewoning biedt een uitstekende basis voor wie wil wonen op een centrale locatie in Delft en het fijn vindt om een huis volledig naar eigen smaak te moderniseren.

    Plan snel een bezichtiging en ontdek de mogelijkheden!

  • Locatie

    [ { "address": "Ternatestraat 31", "zipCode": "2612 AW", "city": "Delft", "lat": 52.0227723, "lng": 4.3535981, "heading": 0, "pitch": 0 } ]
  • Kenmerken

    Prijs
    € 299.000 k.k.
    Status
    Beschikbaar
    Oplevering
    In overleg

    Bouw

    Soort appartement
    Benedenwoning, Appartement
    Woonlaag
    1
    Soort bouw
    Bestaande bouw
    Bouwjaar
    1934
    Onderhoud binnen
    Goed
    Onderhoud buiten
    Goed
    Bijzonderheden
    Kluswoning

    Oppervlakten en inhoud

    Oppervlakte
    64m²
    Inhoud
    249m³

    Indeling

    Aantal kamers
    2
    Aantal slaapkamers
    1
    Aantal badkamers
    2
    Verdiepingen
    2
    Voorzieningen
    Rookkanaal, TV-Kabel

    Energie

    Energielabel
    C
    Isolatie
    Dubbel glas
    Warm water
    C.V.-ketel
    Verwarming
    C.V.-ketel
    Ketel
    Combiketel (Combi-ketel, Eigendom)

    Buitenruimte

    Ligging
    In woonwijk
    Tuin
    Achtertuin
    Achtertuin
    Noordwest, 29m², 319×913cm
    Schuur
    Vrijstaand hout
    Faciliteiten schuur
    Voorzien van elektra

    Garage

  • Plattegronden

  • Interesse in deze woning

    Vul uw gegevens in en wij nemen zo snel mogelijk contact met u op voor een afspraak of meer informatie.

    Uw bericht is naar ons verzonden. Wij nemen zo snel mogelijk contact met u op.

    Er is iets mis gegaan met het versturen van het formulier.
    Controleer of u alle velden (goed) heeft ingevoerd en probeer het nog een keer.

    Hoeveel is ?  

    Heeft u vragen?

    Bel ons 070 - 762 00 90